[UWcinema] TOMORROW (Fri, 3PM) - Feb 28: CMS Works in Progress Presentations by Runjie Wang, Yumo Yan, and Kallie Strode

UW Cinema Studies List via Uwcinema uwcinema at u.washington.edu
Thu Feb 27 12:00:00 PST 2025


Hi All,

Please be reminded that the presentations will start at 3 PM tomorrow.
Looking forward to seeing you there!

Cheers,
Mavis Siu

________________________________
From: Mavis Siu
Sent: Monday, February 24, 2025 9:52 AM
To: cmsfaculty at uw.edu <cmsfaculty at uw.edu>; cmsfaculty_adjuncts at uw.edu <cmsfaculty_adjuncts at uw.edu>; cmsgrads at uw.edu <cmsgrads at uw.edu>; cmscertgrads at uw.edu <cmscertgrads at uw.edu>; uwcinema at uw.edu <uwcinema at uw.edu>
Subject: Feb 28: CMS Works in Progress Presentations by Runjie Wang, Yumo Yan, and Kallie Strode

Hi All,

Please find below the details for the upcoming Works in Progress Presentations on Friday, Feb 28th, 3:00 PM - 5:00 PM, CMU 202, Simpson Center:

Cinemetric/Cinematic Encodings: Industrial Films, Machine Vision, and Their Aesthetic-Technical-Epistemic Operations
[cid:ee7b2be0-dab4-4998-b181-7e266667258e]
Abstract: My presentation examines the intersection of industrial films/videos and industrial vision technologies to explore how visual media and automated visual inspection systems encode symbolic assumptions of normalcy, order and uniformity into their visual and operational framework. Reading industrials films vis-à-vis the design conceptualization of industrial vision technologies reveals that machine vision’s process of measuring industrial objects is not purely technical—it is also deeply aesthetic and epistemic. Ultimately, the presentation argues for understanding the recursive and co-constitutive relations of the technical and symbolic, the operational and representational in the shaping of industrial visual operations.

Runjie Wang is PhD Candidate in Cinema and Media Studies whose research centralizes scientific, industrial, and utility films in a constellation of media and technical objects that institutionalize knowledge and evidence. His writings have appeared or are forthcoming in The Moving Image, Asian Cinema, and Media Industries.

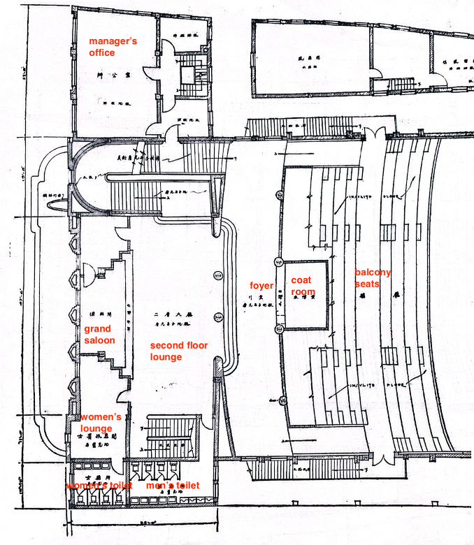
A Space for Women: Gender, Class, and Women’s Lounges in 1930s Chinese Movie Palaces
[cid:96fe22ee-d6d1-433b-aadc-3ddd84f49dec]
Abstract: If 1930s Hollywood exported films, stars, and the American dream, did it also export gendered leisure spaces? This paper talks about the design and spatial planning of women’s lounges in three Chinese movie palaces in the 1930s: Shanghai’s Nanking Theater, Nanjing’s Xindu Theater, and Nanjing’s Dahua Theater. The women’s lounge was a popular and staple amenity in American movie palaces from the 1910s to the 1930s, providing a space for female moviegoers of all classes to powder, rest, and socialize before and after the show. As discussed by Shelley Stamp, Lucy Fischer, Ross Melnick and Andreas Fuchs, the women’s lounge stood for a feminized and cross-class moviegoing culture that Hollywood was cultivating at the time. The women’s lounge was brought to a few 1930s Chinese movie theaters by U.S-trained Chinese and Chinese American architects, who incorporated the space into their theater designs. Yet, prior scholarship on 1930s Chinese film exhibition never mentioned this gendered amenity in Chinese theaters. In my paper, I examine the blueprints of the three Chinese movie palaces. By comparing the design and spatial planning of the Chinese women’s lounges with blueprints of American movie palaces like the Seattle Paramount Theater, I demonstrate how the Chinese architects sought to transplant the space’s feminized and cross-class appeal to Chinese theaters. Yet, the women’s lounge proved to be fundamentally incompatible with existing conceptions of class, gender, and leisure in 1930s Chinese society and local film exhibition practices, and was quickly replaced by non-gendered and class-based spaces (for instance, a tearoom) when the theaters were renovated in the 1940s. In this paper, I reveal the seldom-known transnational transplantation of the women’s lounge in 1930s Chinese movie theaters. I parse how space carried cultural meanings across borders, and ponder on how movie theater blueprints can open up new perspectives on the studies of historical film exhibition.

Yumo Yan is a PhD candidate in Cinema and Media Studies at the University of Washington, Seattle.

A Phenomenology for the Queerbait: Calvin Klein, fashion fandoms, & the coldness of Lil Miquela
[cid:1a748ad2-1fd3-4bae-b7d3-da979f85454e]
Abstract: Taking Marshall McLuhan’s conception of cool media as its point of departure, this piece dislodges the celebrity robot Lil Miquela as a form of low-definition media who, by virtue of her parafictional design, must be repeatedly ‘filled in’ by her fans as they imaginatively backtrack to speculate about the details of her impression. Here it is argued that the virtual influencer’s fandom, through its required exhibition this archeological impulse, more largely indexes the queer fan’s paradoxical subject position: in Heather Love’s words, one that is always looking forwards while also ‘feeling backwards.’ Miquela’s coolness acts as an ideal affective infrastructure for retaining the posthuman’s fanbase and for queerbaiting it—especially against the backdrop of the fashion industry. In the spring of 2019, the bot was featured in the Calvin Klein commercial “Miquela and Bella Hadid Get Surreal,” wherein she and (the human) supermodel Bella Hadid engage in a lesbian kiss. The coldness of both Miquela and the model not only allow them to retain sexual ambiguousness, but satisfies fashion’s constant recruitment of the affectless feminine, of the statuesque.

Kallie Strode is a Ph.D candidate in the department of Cinema & Media Studies at the University of Washington, Seattle. Her research predominantly focuses on feminisms, pop culture, affect, and design. She is published in the journal Screen Bodies and is currently working on a piece on anxiety and shiny objects in Olivier Assayas’ film Personal Shopper (2016).

Feel free to forward this to interested parties, thank you. Hope to see you there!

This event will be followed by Happy Hour, with the location to be confirmed.

Cheers,
Mavis Siu
-------------- next part --------------
An HTML attachment was scrubbed...
URL: <http://mailman11.u.washington.edu/pipermail/uwcinema/attachments/20250227/87a000a0/attachment-0001.html>
-------------- next part --------------
A non-text attachment was scrubbed...
Name: Cinemetric_Cinematic Encodings.png
Type: image/png
Size: 2176597 bytes
Desc: Cinemetric_Cinematic Encodings.png
URL: <http://mailman11.u.washington.edu/pipermail/uwcinema/attachments/20250227/87a000a0/attachment-0002.png>
-------------- next part --------------
A non-text attachment was scrubbed...
Name: A Space for Women.png
Type: image/png
Size: 1039832 bytes
Desc: A Space for Women.png
URL: <http://mailman11.u.washington.edu/pipermail/uwcinema/attachments/20250227/87a000a0/attachment-0003.png>
-------------- next part --------------
A non-text attachment was scrubbed...
Name: Outlook-lgk3crm4.jpg
Type: image/jpeg
Size: 55225 bytes
Desc: Outlook-lgk3crm4.jpg
URL: <http://mailman11.u.washington.edu/pipermail/uwcinema/attachments/20250227/87a000a0/attachment-0001.jpg>


More information about the Uwcinema mailing list